Sinds kort weet ik wat een scheg is. Ook heb ik kennisgemaakt met de koude brug en weet ik waarom ik die moet vrezen. En snap ik eindelijk hoe het zit met dubbele beglazing en HR-glas.
De bron van al mijn nieuwe kennis? Aannemer Henk. Menige woensdagavond is hij aangeschoven bij Roger en mij om gezamenlijk de plannen en de begroting door te nemen. Saai? Ingewikkeld? Welnee: Henk legt namelijk alles uit en maakt daarbij vaak een tekening zodat ook een leek als ik het snapt. Reuze fijn, want dan weet je echt wat je kiest. En reuze slim van Henk, want zo voorkom je dat er tijdens de bouw ineens vragen rijzen omdat de opdrachtgever het achteraf toch allemaal niet helemaal begreep – en het eigenlijk allemaal net even anders wil hebben.
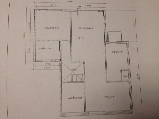
Dus die bouwplannen van ons zijn bedacht, herkauwd, opnieuw bedacht en tot drie keer toe veranderd. Maar nu zijn we er echt uit.
De zolder: Aanvankelijk wilden we dakkapellen plaatsen maar gaandeweg rees de twijfel of die wel de extra meters zouden leveren die we ermee beoogden. Na het leeghalen van de zolder zagen we dat het eigenlijk best meeviel met de vierkante meters en hakten we de knoop door: geen dakkapellen maar dakramen. Ook een ruimtelijk gevoel, net zoveel licht en een heel stuk budget-vriendelijker!

De keuken: De muur tussen de keuken en wat straks de eetkamer wordt, zal deels gesloopt worden om een open ruimte te creëren. Hierin komt een strakke, greeploze keuken met veel opbergruimte en een werkeiland van een 1.20m bij 1m.
De vloer: De huidige constructie van hout op zand wordt vervangen door een geïsoleerde vloer van beton. Met vloerverwarming … fijn voor de voetjes. En egaal bovendien, dus geen hoogteverschillen tussen – en soms binnen – kamers.
De aanbouw: Aan de zijkant breiden we de woning met 3 m uit om een echte badkamer te creëren in plaats van het huidige toilet-met-douche. In het verlengde daarvan wordt de woning over zo’n 8.50 m breedte 4 m doorgetrokken, om onze slaapkamer en een vergrote woonkamer te maken. Met plat dak – en scheggen voor de goed afwatering! – dat verstevigd is zodat we in de toekomst sedum erop kunnen planten.
Op papier staat het als een huis – nu moet het realiteit worden!

(en vaak de achterliggende muur) van de wand, zodat ook hier geïsoleerd kan worden. Ook dit is een klus waarbij het blik op oneindig moet staan en je dus tijd genoeg hebt om over andere dingen na te denken. De indeling van de keuken, bijvoorbeeld. Die zou eerst dicht worden maar we hebben nu besloten om de muur door te breken. Keuken en eetkamer worden dan met elkaar verbonden door een werkeiland met veel opbergruimte. Een praktische oplossing die nog meer licht in ons zonnig huisje brengt. Donderdag nog even doornemen met de keukenleverancier … Gelukkig maar dat we tot 12 weken voor aflevering nog kunnen schuiven met de opstelling.




Daarbij ontdek je dat de oorspronkelijke klussers echt alles gebruikten wat voor handen was. Stroken sinaasappelkistjes bijvoorbeeld.

